Digital bingo is played on touchscreens. (Image: Yuri Arcurs/Alamy)
The old Halifax bank in Biggleswade, Bedfordshire could soon have a new life as a digital bingo lounge, if plans submitted to the local council get the green light.
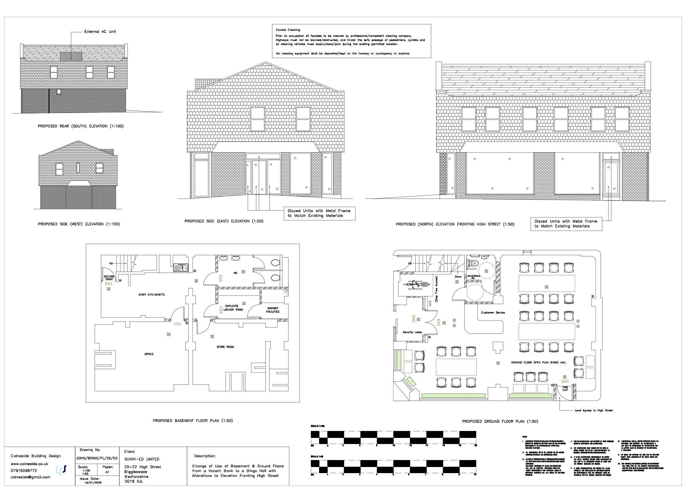
The High Street property has been vacant since July 2024. Now, developers want to bring back foot traffic with touchscreen bingo and extended opening hours
Plans have been submitted to transform the former bank into a late-night, touchscreen bingo venue. The proposal would see the basement and ground floors of 20–22 High Street converted into a modern gaming space, creating eight jobs in the process.
Submitted by Sunni-Ed Limited, a Luton-based company, the plans aim to repurpose the building using the latest bingo tech, without a bingo caller in sight.
According to the planning documents filed with Central Bedfordshire Council, the venue would use individual touchscreen machines instead of traditional cards and dabbers. Players would game individually or in groups, competing digitally in linked games across machines.
“This proposed concept isn’t a traditional bingo hall,” said Colneside Building Design Consultancy, the firm representing Sunni-Ed Limited.
“New technology enables the use of touch screen machines… removing the need for a bingo caller who needs to be viewed by all.”
The design includes minimal exterior changes to preserve the site’s historic appearance, which lies within the Biggleswade Conservation Area. The upstairs floor, previously used by staff, would remain empty under the proposed use.
If approved, the venue would open from 8 a.m. to 12:30 a.m. Monday to Friday, until 1:30 a.m. on Saturdays, and from 9 a.m. to midnight on Sundays and bank holidays.
Colneside’s planning statement says the new bingo lounge could help revitalise the town centre by attracting a wider demographic and offering a social, low-stakes gaming option.
“This new use will add to the vitality of the town centre and will complement other such premises,” the consultancy wrote.
“Bingo is a unique part of the gambling industry. It’s at the ‘soft end’ of the gambling spectrum and is firmly rooted in the social fabric of the communities it serves.”
The proposal includes a premises management plan to limit disruption. According to the documents, no alcohol will be served, and staff will offer complimentary soft drinks. Individuals appearing intoxicated or under the influence of drugs would be refused entry.
The business would also require a separate licence under the Gambling Act 2005 before beginning operations. Colneside notes that the location has access to nearby public transport links and parking within 100 metres.
Bingo halls have been going through change with some older halls closing while empty high street premises like banks are being repurposed.

First look at the plans for the digital bingo hall. (Image: Central Bedfordshire County Council)
The application is currently under review by Central Bedfordshire Council and can be viewed on its online planning portal.
Sunni-Ed Limited has not previously operated a bingo venue, and no specific operator name or opening date has yet been disclosed.
If approved, the Biggleswade bingo lounge would join a growing number of digitally-driven, small-scale gaming venues opening in UK town centres, a trend supported by the Gambling Commission’s ongoing reviews of land-based gambling reform.
Full plans can be viewed here.

Most of my career was spent in teaching including at one of the UK’s top private schools. I left London in 2000 and set up home in Wales raising four beautiful children. I enrolled at University where I studied Photography and film and gained a Degree and subsequently a Masters Degree. In 2014 I helped launch a new local newspaper and managed to get front and back page as well as 6 filler pages on a weekly basis. I saw that journalism was changing and was a pioneer of hyperlocal news in Wales. In 2017 I started one of the first 24/7 free independent news sites for Wales. Having taken that to a successful business model I was keen for a new challenge. Joining the company is exciting for me especially as it is a new role in Europe. I am keen to establish myself and help others to do the same.
Read Full Bio




